Description
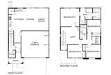
NEW CONSTRUCTION - SINGLE-FAMILY HOMES - QUICK MOVE HOME! Welcome to Seneca Pointe IV, a stunning collection of single-family homes ranging from 1,775 sq. ft. to 1,874 sq. ft. in the city of Adelanto. This Residence 1775 plans leaves nothing to be desired, showcasing a beautiful front porch and an elegant, inviting entryway that opens to an airy and spacious Great Room, Kitchen and Dining space designed for gathering together. Chef-inspired meals are a breeze in the gourmet Kitchen with stylish cabinetry, granite counter tops, brand, new stainless-steel appliances and pantry. Upstairs, an over-sized Loft lends a perfect space for studying, movie night or just lounging. The additional, generously-sized extra Bedrooms and Bath with dual sink complement the space. The Primary Suite is a welcome refuge from the day, offering an expansive space to relax and unwind while the Primary Bath offers an oversized shower, dual sink vanity and amazing walk-in closet. Your dream outdoor oasis awaits with a large back yard space just waiting for your imagination. Other amazing features include "Americas Smart Home Technology" for Home Automation at your fingertips, LED recessed lighting, and much more.
-
4BEDS
-
0.17ACRES
-
2BATHS
-
11/2 BATHS
-
1,775SQFT
-
$279$/SQFT
Description
NEW CONSTRUCTION - SINGLE-FAMILY HOMES - QUICK MOVE HOME! Welcome to Seneca Pointe IV, a stunning collection of single-family homes ranging from 1,775 sq. ft. to 1,874 sq. ft. in the city of Adelanto. This Residence 1775 plans leaves nothing to be desired, showcasing a beautiful front porch and an elegant, inviting entryway that opens to an airy and spacious Great Room, Kitchen and Dining space designed for gathering together. Chef-inspired meals are a breeze in the gourmet Kitchen with stylish cabinetry, granite counter tops, brand, new stainless-steel appliances and pantry. Upstairs, an over-sized Loft lends a perfect space for studying, movie night or just lounging. The additional, generously-sized extra Bedrooms and Bath with dual sink complement the space. The Primary Suite is a welcome refuge from the day, offering an expansive space to relax and unwind while the Primary Bath offers an oversized shower, dual sink vanity and amazing walk-in closet. Your dream outdoor oasis awaits with a large back yard space just waiting for your imagination. Other amazing features include "Americas Smart Home Technology" for Home Automation at your fingertips, LED recessed lighting, and much more.
Related Properties
Based on information from California Regional Multiple Listing Service, Inc. as of 2025-11-17T07:31:00.857. This information is for your personal, non-commercial use and may not be used for any purpose other than to identify prospective properties you may be interested in purchasing. Display of MLS data is deemed reliable but is not guaranteed accurate by the MLS or Robyn Graham & Associates | Independent Broker Network. Licensed in the State of California, USA.
